主要性能规范
电源电压:电机为三相交流,380V 50Hz
环境温度:-20~+60℃(特殊订货-60~+80℃)
相对湿度:≤90%(25℃时)
户外型用于无易燃/易爆和无腐蚀性介质场所防护等级:lP45户外型
公称通径:DN50~800mm
公称压力:PN10、PN16
使用温度:≤120℃
适用介质:蒸汽、油品、海水、污水等
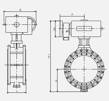
主要外形连接尺寸单位:mm
|
DN |
50 |
65 |
80 |
100 |
125 |
150 |
200 |
250 |
300 |
350 |
400 |
450 |
500 |
600 |
700 |
800 |
|
L |
108 |
112 |
114 |
127 |
140 |
140 |
152 |
165 |
178 |
190 |
216 |
222 |
229 |
267 |
430 |
470 |
|
H |
117 |
137 |
140 |
150 |
182 |
190 |
210 |
251 |
290 |
298 |
336 |
380 |
390 |
461 |
496 |
568 |
|
H1 |
440 |
470 |
90 |
490 |
700 |
730 |
810 |
950 |
1000 |
1080 |
1130 |
1280 |
1309 |
1350 |
1451 |
1550 |
|
A |
130 |
130 |
130 |
130 |
325 |
325 |
325 |
370 |
370 |
370 |
370 |
486 |
564 |
561 |
561 |
561 |
|
B |
120 |
120 |
120 |
120 |
247 |
247 |
247 |
330 |
330 |
330 |
330 |
459 |
478 |
570 |
570 |
570 |
|
D0 |
80 |
80 |
80 |
80 |
150 |
150 |
150 |
200 |
200 |
250 |
350 |
250 |
300 |
300 |
300 |
360 |
-
Z85X沟槽暗杆闸阀Z85X沟槽暗杆闸阀是引进国外技术生产的新型闸阀产品,拥有传统阀门所不具备的多种优势,应用范围广泛。它具有开关轻巧、密封可靠、弹性记忆佳及使用寿命长等显著优点。本体采用球墨铸…查看详情
-
Z81X沟槽明杆闸阀Z81X沟槽明杆闸阀是引进国外技术生产的新型闸阀产品,拥有传统阀门所不具备的多种优势,应用范围广泛。它具有开关轻巧、密封可靠、弹性记忆佳及使用寿命长等显著优点。本体采用球墨铸…查看详情
-
Z85T沟槽铜芯防护暗杆闸阀Z85T沟槽暗杆防护铜杆铜芯闸阀是引进国外同类先进产品而设计制造的一系列新型连接阀门。它具有安装快速、简易、安全、可靠、不受安装场地限制、便于管道与阀门的维修保养,有隔振隔音…查看详情
-
Z81T沟槽铜芯防护明杆闸阀Z81T沟槽明杆防护铜杆铜芯闸阀是引进国外同类先进产品而设计制造的一系列新型连接阀门。它具有安装快速、简易、安全、可靠、不受安装场地限制、便于管道与阀门的维修保养,有隔振隔音…查看详情


