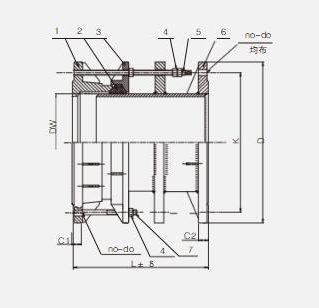
VSSJA型双法兰限位伸缩接头是由本体、密封圈、压盖、伸缩短管等主要部件组成。在松套伸缩接头原有性能的基础上增设限位装置,在**伸缩量处用双螺母锁定。管道在允许的伸缩量中可以自由伸缩,一旦超过其**伸缩量就起到限位,确保管道的安全运行,特别适用于有振动或有一定斜度及拐弯的管路中的连接。适用于输送海水、淡水、冷热水、饮用水、生活污水、原油、燃油、润滑油、成品油、空气、煤气、温度不高于250℃的蒸汽和颗粒粉状等介质。
主要外形连接尺⼨单位:mm
|
DN |
DW |
D |
K |
L |
δ |
no-do |
C1 |
C2 |
n 1 -Th*S |
n 1 -Th*S3 |
n-Th |
|
400 |
426 |
580 |
525 |
400 |
32.5 |
16-Φ30 |
28 |
38 |
4-M20*145 |
4-M20*280 |
16-M20 |
|
450 |
480 |
640 |
585 |
400 |
32.5 |
20-Φ30 |
30 |
42 |
5-M20*145 |
5-M20*280 |
20-M20 |
|
500 |
530 |
715 |
650 |
400 |
32.5 |
20-Φ33 |
32 |
46 |
5-M20*145 |
5-M20*280 |
20-M20 |
|
600 |
630 |
840 |
770 |
400 |
32.5 |
20-Φ36 |
36 |
54 |
5-M20*145 |
5-M20*280 |
20-M20 |
|
700 |
720 |
910 |
840 |
400 |
32.5 |
24-Φ36 |
40 |
40 |
6-M20*145 |
6-M20*280 |
24-M20 |
-
Z85X沟槽暗杆闸阀Z85X沟槽暗杆闸阀是引进国外技术生产的新型闸阀产品,拥有传统阀门所不具备的多种优势,应用范围广泛。它具有开关轻巧、密封可靠、弹性记忆佳及使用寿命长等显著优点。本体采用球墨铸…查看详情
-
Z81X沟槽明杆闸阀Z81X沟槽明杆闸阀是引进国外技术生产的新型闸阀产品,拥有传统阀门所不具备的多种优势,应用范围广泛。它具有开关轻巧、密封可靠、弹性记忆佳及使用寿命长等显著优点。本体采用球墨铸…查看详情
-
Z85T沟槽铜芯防护暗杆闸阀Z85T沟槽暗杆防护铜杆铜芯闸阀是引进国外同类先进产品而设计制造的一系列新型连接阀门。它具有安装快速、简易、安全、可靠、不受安装场地限制、便于管道与阀门的维修保养,有隔振隔音…查看详情
-
Z81T沟槽铜芯防护明杆闸阀Z81T沟槽明杆防护铜杆铜芯闸阀是引进国外同类先进产品而设计制造的一系列新型连接阀门。它具有安装快速、简易、安全、可靠、不受安装场地限制、便于管道与阀门的维修保养,有隔振隔音…查看详情


